Boxtel (winnaar categorie 3)
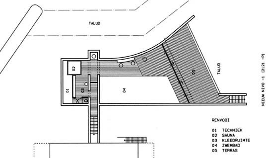
Zwembad bij de woning van de familie Noten aan de Lagevoorsteweg in Liempde ontworpen door Van den Hout/Van de Oetelaar architecten uit Oisterwijk.


Hoewel dit plan na uitvoering nauwelijks boven het maaiveld uit zal steken, is de ruimtelijke opzet van dit zwembad zodanig geraffineerd vormgegeven dat zij waardering oogst bij de commissie. Het plan zit slim in elkaar en blinkt uit door een verfijnde detaillering en eerlijk materiaalgebruik.


Opdrachtgever : de heer E.A.H.M.
  Noten
projectarchitect : Geert van den
  Oetelaar
aannemer : nog niet bekend
bouwsom : � 600.000,-
oplevering : nog niet bekend